GALLERY / FEATURED

Gordon Expansion

Gordon Expansion advancement as of February 26, 2026.

Tommy Wash / Xpress Car Wash Sunnyvale Tx

Under Construction, another Tommy Wash Car Wash for Xpress Car Wash of Texas, located at 3217 North Belt Line Road, Sunnyvale, Texas.

Tommy Wash / Xpress Car Wash Tyler Tx

Under Construction in Tyler Texas.  Tommy Wash Car Wash for Xpress Car Wash of Texas, located at 1669 S. SW Loop 323, Tyler, Texas.

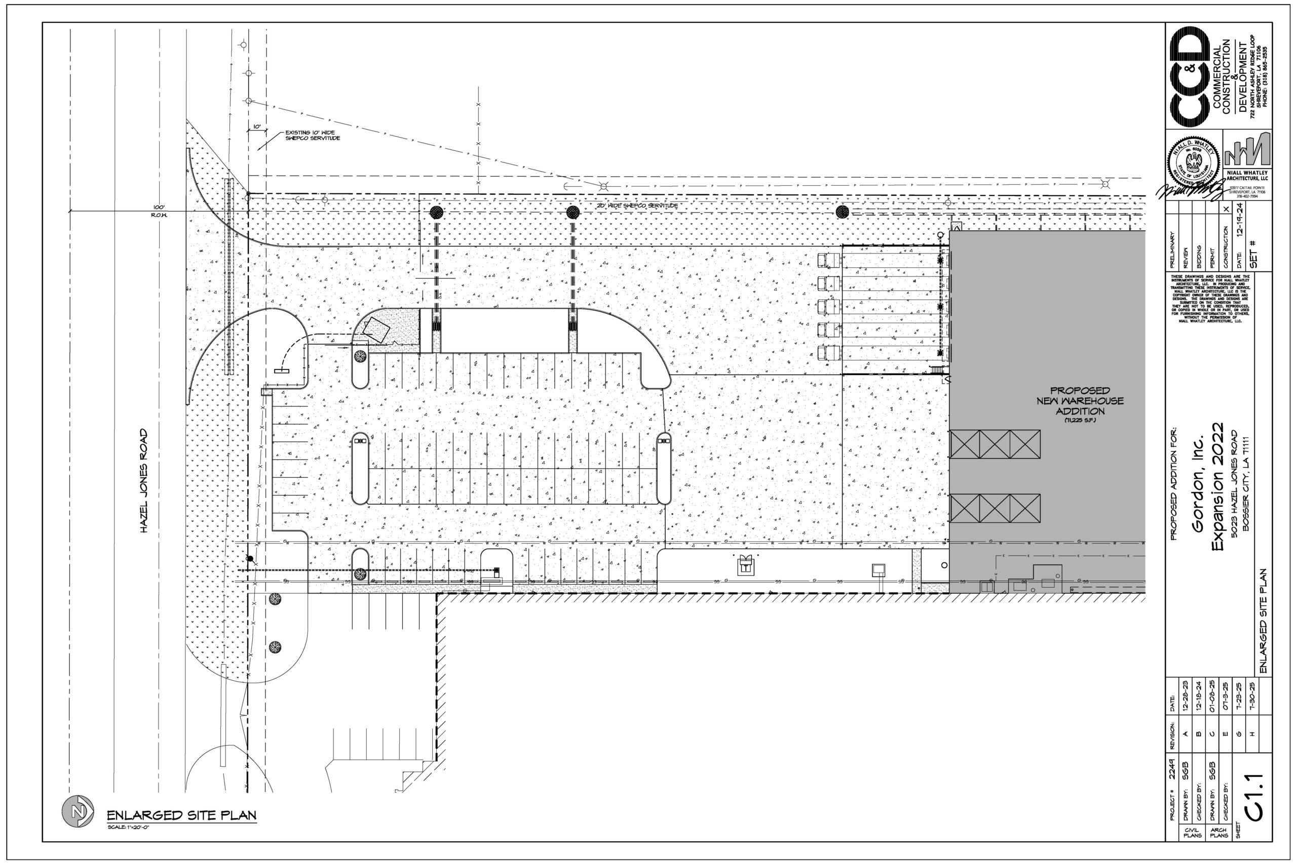
Gordon Expansion

Gordon Expansion advancement as of October 08, 2025.

Gordon Expansion

Gordon Expansion advancement as of August 13, 2025.

Firehouse Subs

Firehouse Subs advancement as of July 10, 2025.

Gordon Expansion - Aerials

Gordon Expansion advancement as of July 02, 2025.

Gordon Expansion

Gordon Expansion advancement as of May 21, 2025.

LifeSHARE warehouse - Aerial Videos & images

LifeShare Blood Center advancement as of April 11, 2025.

Gordon Expansion - Aerials

Gordon Expansion advancement as of February 26, 2025.

LifeSHARE warehouse - Aerial Videos & images

LifeShare Blood Center advancement as of January 23, 2025.

LifeSHARE warehouse - Aerial Videos

LifeShare Blood Center

LifeShare Blood Center advancement as of December 13, 2024.

LifeShare Blood Center

LifeShare is expanding their current Warehouse needs.  A new 15,000 square foot Warehouse is being planned directly adjacent to the North of their current facility.  The new Warehouse will house a small Office area for staff, climate controlled Warehouse space with truck dock facilities and a new Donor Services space that will allow a separate area for the supplying all of the Blood Donor buses.  The surrounding landscaping that exists on the Residential lots, owned by the Blood Center and not scheduled for development, will be preserved and maintained.

food bank of north west Louisiana

Interior photos of the newly completed Food Pantry for the Food Bank on Mount Zion Road.

Lash Family YMCA - South East Shreveport

Celebration church Worship Center

Three days until Easter! We received Partial Finals today (3-28-2024) so that the Church could have Easter Services in the new 1000 seat Sanctuary. Thanks to all the Subs and CC&D employees for making this happen!!”

Lash Family YMCA - South East Shreveport

Lash Family YMCA Grand Opening January 27, 2024….Officially Open for Business!

Lash Family YMCA - South East Shreveport

Lash Family YMCA Grand Opening January 27, 2024….Officially Open for Business!

Tommy wash / xpress car wash south east Shreveport

Newly completed Xpress Car Wash @ 9438 Ellerbe Road, Shreveport.

bossier office warehouse

Construction for Bossier City Office Warehouse is officially complete and ready for tenants!

food bank of north west Louisiana

October 26, 2023:

Exterior materials installed, waiting on metal awnings to be installed. All of the paving has been installed.

Floor polishing under way, ceiling paint being done. Wall painting, ceiling finish and lighting will be installed within a week. Cabinets, final electrical and plumbing fixtures withing a couple of weeks. Floor finishes should be complete shortly thereafter.
Landscaping to be performed within the next couple of weeks.

hazel Jones and swan Lake Road Office Shell

Construction for Hazel Jones is officially finished and ready for tenants!

Bossier Office Warehouse

Getting close!
As of October 11, overhead doors, storefront glass, brick veneer, aluminum wood look siding, area lights, and Metal Mega-rib panels have been installed. As for the inside, electrical / mechanical, and finishes work is being performed.

Lash Family YMCA - South East Shreveport

YMCA @ Ellerbe Road/Kroger, October 6, 2023: 

Getting closer & closer! 

Retaining walls are up. CMU Veneer is done. Steel is has been installed. CrossFit addition building has been built. Mechanical/Electrical equipment has been installed. 

 

Lash Family YMCA - South East Shreveport

YMCA @ Kroger Marketplace 

Getting close!

HVAC Rooftop units are set. Roofing is about 85% done. Concrete block on the building is complete. Window systems are being installed. Paving & stormwater drainage is complete. Wall framing / mechanical / electrical / plumbing rough in is about complete.

Lash Family YMCA - South East Shreveport

YMCA @ Ellerbe Road/Kroger, July 5, 2023: 

Electrical / Mechanical Rough-in work being performed. Most of the metal stud work has been completed. Exterior walls and the roofing are nearly finished along with wiring for power and lighting. Exterior concrete walking trail being installed to connect to the board walk behind the adjacent Shopping Center. Concrete and equipment piping for the Exterior Pool and Splash Pad have been installed readying for final deck and plaster work. 

Tommy wash / xpress car wash south east Shreveport

Tommy Wash SE Shreveport Construction, July 5, 2023:

All paving work has been completed; all brick veneer has been installed. Currently installing Aluminum composite panels to the exterior entry and exit tunnel. Car wash equipment is being installed and connected. Readying the car wash for operations in a few weeks.   

hazel Jones and swan Lake Road Office Shell

Construction progress at Hazel Jones @Swan Lake Road as of May 2, 2023. Roof Insulation and exterior sheathing have been installed. All paving work has been completed. We will begin installing exterior finishes in the coming weeks to include brick and clock veneer, stucco, dekton panels and finish the roof installation 

Lash Family YMCA - South East Shreveport

construction progress at the YMCA @ Ellerbe Road as of April 28, 2023.  Interior and Exterior walls are being built along with wiring for power and lighting. We will begin Roofing in the coming weeks which will include setting mechanical units. 

Tommy wash / xpress car wash south east Shreveport

Tommy wash SE Shreveport Construction as of April 20, 20223

hazel Jones and swan Lake Road Office Shell

Hazel Jones and Swan Lake Road current update as of April 4, 2023.

Lash Family YMCA - South East Shreveport

YMCA Construction advancements as of March 16, 2023

Tommy wash / xpress car wash south east Shreveport

Tommy wash SE Shreveport Construction as of March 16, 20223

Lash Family YMCA - South East Shreveport

YMCA Construction advancements as of February 27, 2023. 

hazel Jones and swan Lake Road Office Shell

Hazel Jones and Swan Lake Road current update as of February 27, 2023.

Bossier Office Warehouse

Bossier Office Warehouse advancements as of February 27, 2023.

Tommy wash / xpress car wash south east Shreveport

Tommy wash SE Shreveport Construction as of January 09, 20223

Lash Family YMCA - South East Shreveport

YMCA Construction as of January 09, 2023.

Lash Family YMCA - South East Shreveport

Under Construction: 35,000 sf Gym and Fitness Center with 3,000 sf CrossFit and 4,700 sf Outdoor Pool on 5 ½ Acres.

Located adjacent to Kroger Marketplace @ 9440 Ellerbe Road.

Lash Family YMCA - CONSTRUCTION PROGRESS

YMCA Construction advancements as of November 10, 2022.

Lash Family YMCA - CONSTRUCTION PROGRESS

As of October 11, 2022, we have most of the parking lot and associated light pole bases constructed. The pool has been set and plumbed. Currently, the building is formed up and rough-in plumbing has begun. 

Tommy wash / xpress car wash south east Shreveport

Coming Soon: 4,500 sf Tunnel, Automated Car Wash on 1 Acre site.

Located on Kroger Marketplace Outparcel @ 9438 Ellerbe Road

hazel Jones and swan Lake Road Office Shell

Coming Soon: 9,700 sf Shell Office Space on 2 Acres

Located at the Intersection of Swan Lake Road and Hazel Jones.

RELIABLE CONSTRUCTION FOR ALL OUR CLIENTS